Hospitality Team COVID Guidelines

Last updated on Wednesday 6 January 2021.

We want church to be a safe place for everyone. This means Sundays will look and feel a little different compared to what it was like before COVID. We recognise some of us are feeling anxious and stressed by everything that is going on. Others are not so fussed about it. Let’s make every effort to show kindness to one another, be empathetic to each others’ feelings and be gentle with those who may respond differently from us. Also, as we gather in worship to God and connect with one another, let’s remember our purpose remains the same: to connect Jesus to every moment of every day.

General guidelines

- Do not serve on the hospitality team if you or someone in your household is feeling unwell or has any flu-like symptoms. If you develop symptoms or start feeling sick while at church go home immediately. Please ask for assistance if you need help to get home safely. The service is still being streamed online. 

- Do not serve on the hospitality team if you or someone in your household has returned from overseas or one of the COVID-19 case locations identified by NSW Health in the last 14 days, even if you are asymptomatic.

- Do not serve on the hospitality team if you or someone in your household has been in close contact with a case of COVID-19 in the last 14 days.

- In line with the advice from NSW Health, it is mandatory to wear a mask while serving on the hospitality team.You do not need to wear a mask while on the stage area. Children under 12 are exempt but are encouraged to wear masks where practicable.

- Wash your hands your hands with soap and water, or an alcohol based hand sanitiser for at least 20 seconds before serving.

- To minimise contact, use disposable gloves.

- In line with NSW health guidelines, we will no longer be handing out Bibles, service outlines, flyers, connect cards, pens, etc.

- Where reasonably practical, ensure a distance of 1.5m apart from each other at all times. Household groups and children are exempt.

- To minimise physical contact, refrain from making physical contact as much as possible e.g. shaking hands, kissing, hugging, etc. 

Team Checklist 

- Arrive at 9am.

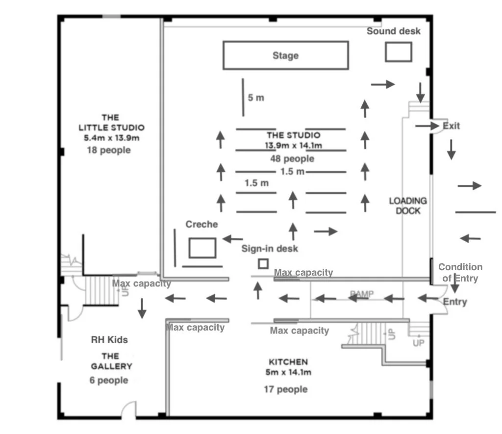
- Set-up seating according to reopen.church responses (Jeremy will print this on Sunday morning for you). Seating should be set up in groups of three and comply with physical distancing guidelines (i.e. maintain 1.5m distance and 5m from ‘stage’, as much as is reasonably practical), while allowing household groups to sit together. A small trolley is available to transport chairs.

- Set-up 2 x black lounges and play mat for creche in the back corner.

- Set-up sign-in desk, including hand sanitiser and face masks.

- Clean and disinfect the sign-in desk, seating, door handles, creche play mat, and other high-touch surfaces, before use.

- Display ‘Conditions of Entry’ poster at entrance, sign-in desk, and ‘Maximum capacity’ posters at the entrance to each room.

- Display 1x pull-up banner at the start of the driveway, 1x pull-up banner at the front entrance, and 2 x banners on the side of the 'stage’ area.

- Using tape, mark out one-way people movement at front door, entrance to The Studio room, and exit. Mark out 3 ‘X’s with tape, 1.5m apart, leading up to sign-in desk.

- Upon arrival, sign-in everyone using the Service NSW QR Code.

- For those who have pre-registered, simply tick attendance on the reopen.church responses print out. For those who have not pre-registered, please add details (full name, email address, household number) to the bottom of the page. Please send completed sheet to Jenni after the service.

- Please ask everyone the ‘conditions of entry’ questions:

1. Have you returned from overseas or one of the COVID-19 case locations identified by NSW Health in the last 14 days, even if you are asymptomatic?

2. Have you been in close contact with a case of COVID-19 in the last 14 days?

3. Have you exhibited COVID-19 symptoms or tested positive in the last 14 days?

- Encourage use of hand sanitiser and face masks.

- Take regulars or newcomers to allocated seating. Encourage people not to linger or mingle after the service, but to continue fellowship in one of the local cafes, parks or in smaller gatherings at home.

- Please stack chairs no more than 7 high and ensure blue COVID Supplies tub is clean.

These guidelines will be updated regularly as government restrictions change. This should be read in conjunction with government and denominational guidelines. 

Thank you for helping us make church a safe place for everyone.

example - how to Set-up

 
THE_STUDIO_FLOOR_PLAN_-_WEB_1024x1024.jpg